Familienfreundliches Einfamilienhaus mit schönem Garten in Deutsch-Evern.
In beliebter Wohnlage von Deutsch-Evern erwartet Sie dieses attraktive Einfamilienhaus, das modern und anspruchsvollen Menschen in jeder Hinsicht gerecht wird. Die Immobilie besticht durch Helligkeit und einen idealen Grundriss sowie ausgewählte Materialien.
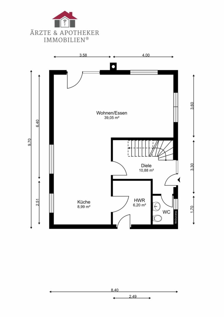
Das freistehende Objekt wurde 1994 in Fertigbauweise erstellt und verklinkert. Über eine großzügige Diele wird der offene Wohn- und Essbereich erschlossen. Die Küche sowie der Hauswirtschaftsraum ergänzen das offene Raumkonzept im Erdgeschoss. Mit einer Einbauküche ausgestattet, können Sie kochen, ohne Ihre Gäste alleine zu lassen und auch Ihre Kinder im Garten haben Sie durch die helle Fensterfront immer im Blick.
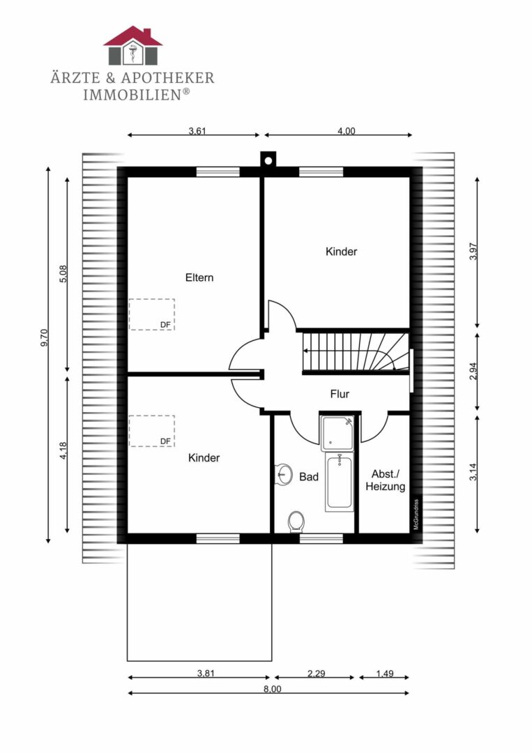
Vom hellen und freundlichen Wohnbereich mit eingebautem Kamin für behagliche Stunden gelangen Sie auf die sonnige Südwest-Terrasse in den liebevoll angelegten Garten. Über eine freie Treppe erschließt sich das lichtdurchflutete Dachgeschoss. Hier befinden sich drei vielseitig nutzbare Schlafzimmer, ein Bad mit Wanne und Dusche sowie ein Abstellraum mit Heizung.
























