Alle 7 Einheiten dieses Objekts sind bei uns in der Vermarktung — alle Wohnungen und Grundrisse finden Sie auf unserer objekteigenen Website:
lüttfelderring18.ärzte-apotheker-immobilien.de
Ihr neuer Rückzugsort am Wasser – KfW-geförderte Neubauwohnung im Erstbezug zur Selbstnutzung
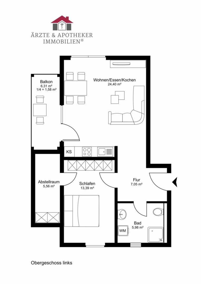
Willkommen in einem Zuhause, das Ruhe, Qualität und moderne Architektur vereint. Diese exklusive 2-Zimmer-Eigentumswohnung im Erstbezug liegt in einem Neubau im 1. Obergeschoss mit nur sieben Wohneinheiten und bietet ein besonders privates Wohngefühl in maritimer Umgebung.
Großzügige, bodentiefe Fenster durchfluten die Räume mit Licht und schaffen eine offene, freundliche Atmosphäre. Der offene Küchenbereich (ohne Einbauküche) geht fließend in den Wohnraum über und führt auf den Balkon – perfekt für entspannte Stunden im Freien. Ein separates Schlafzimmer bietet ruhigen Rückzug, ein begehbarer Kleiderschrank sorgt für zusätzlichen Komfort und Abstellmöglichkeiten.
Edles Eichenparkett im Stäbchenformat in Vollholzausführung, Fußbodenheizung mit Einzelraumsteuerung sowie eine moderne Lüftungstechnik mit Wärmerückgewinnung unterstreichen den hohen Wohnstandard. Das stilvolle Bad mit bodengleicher Dusche, Waschmaschinenanschluss, großformatigen Fliesen und hochwertiger Villeroy-&-Boch-Sanitärausstattung rundet das Angebot ab.
Ein eigener Kfz-Stellplatz (€ 9.000,-) und ein Gemeinschafts-Fahrradhaus befinden sich direkt vor dem Haus.
Das Gebäude erfüllt den KfW-Effizienzhaus-Standard 40 – und ist damit KfW-förderungsfähig. Käufer profitieren von attraktiven Fördermitteln der KfW-Bank in Form von zinsgünstigen Darlehen und möglichen Tilgungszuschüssen. Nachhaltig, zukunftssicher und energieeffizient – eine Investition, die sich doppelt lohnt.
Ein Zuhause für Menschen, die Wert auf Qualität, Ruhe und zeitgemäßes Wohnen legen.






























