Eine Kapitalanlage, die sich rentiert!
Zwei Gebäude, 16 gepflegte, moderne Wohneinheiten und eine Gewerbeeinheit, in zentraler Lage von Scharnebeck, nur rd. 11 km von der Innenstadt Lüneburgs entfernt. Leerstand kann beinahe ausgeschlossen werden.
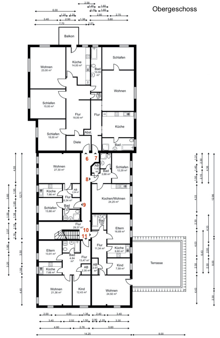
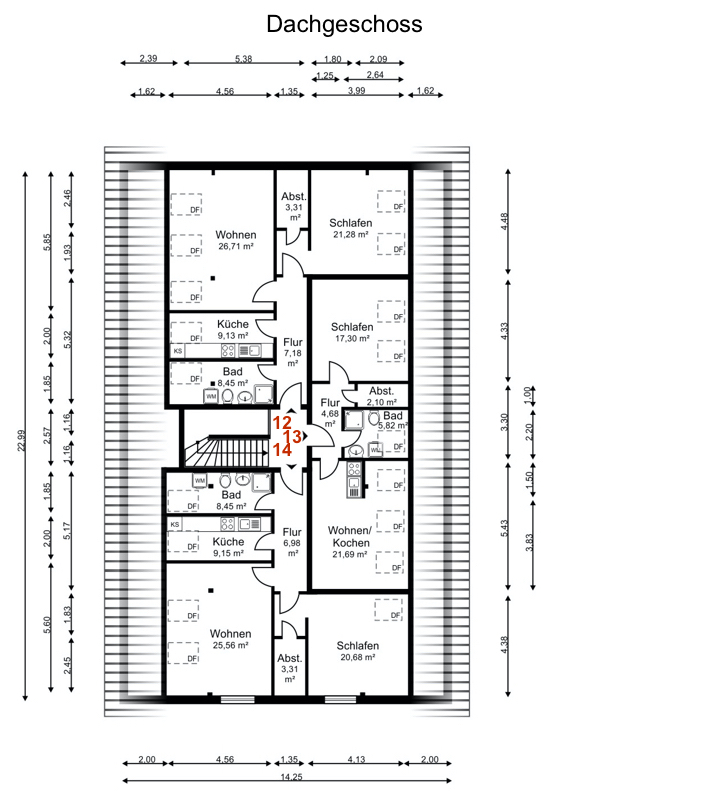
Das Gebäude im Hinterhof wurde ca. 1900 erbaut und unterteilte sich seinerzeit in ein Wohnhaus und einen angrenzenden Gebäudeteil zu Nutzzwecken (Scheune, Stall). Im Jahr 1996 hat der erste Ausbau stattgefunden. Im Obergeschoss wurden vier Wohnungen, im Dachgeschoss drei Wohnungen ausgebaut. Drei weitere Wohnungen wurden 2008 im Erdgeschoss ausgebaut, der Ausbau einer vierten Wohnung auf dieser Ebene fand Anfang 2024 statt. Heute ergibt sich eine Wohnfläche von ca. 1.034 m², welche sich auf insgesamt 14 Wohneinheiten verteilt.
Haben wir Ihr Interesse geweckt? Gern lassen wir Ihnen weitere Bilder und Informationen auf Anfrage zukommen.















































