Diese faszinierende Gewerbeimmobilie zieht Sie auf den ersten Blick in ihren Bann. Hier wurde ein ehemaliger Kornspeicher aus der Gründerzeit zu einem, innen wie außen, repräsentativen Geschäftshaus um- und ausgebaut. Das gesamte Gebäude wurde 1996/97 aufwändig unter Beibehaltung alter Stilelemente saniert und modernisiert. Das Fachwerk der vorderen Fassade wurde ganzflächig verglast. Historische Einbauten wie Mahlwerk, Kranwinde, Fachwerk und Deckenbalken wurden erhalten.
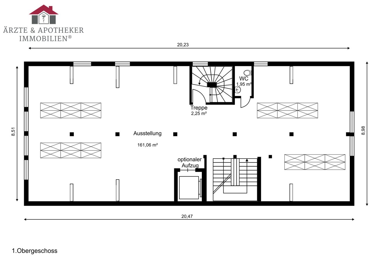
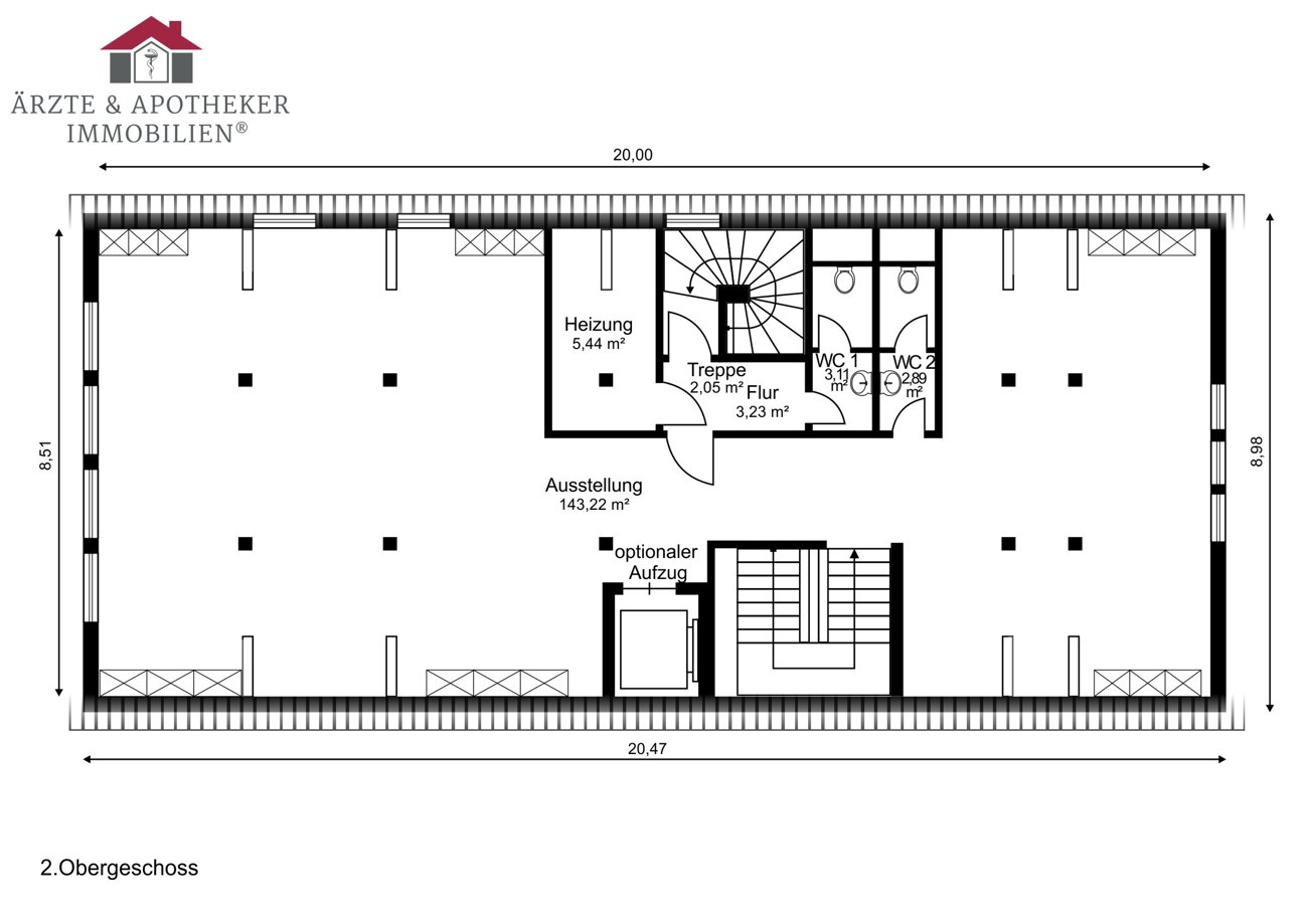
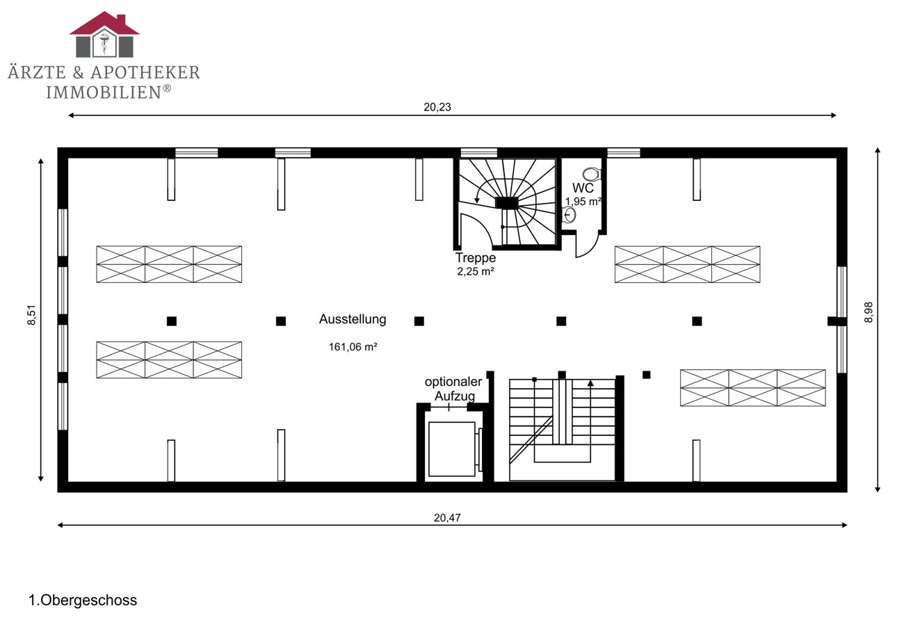
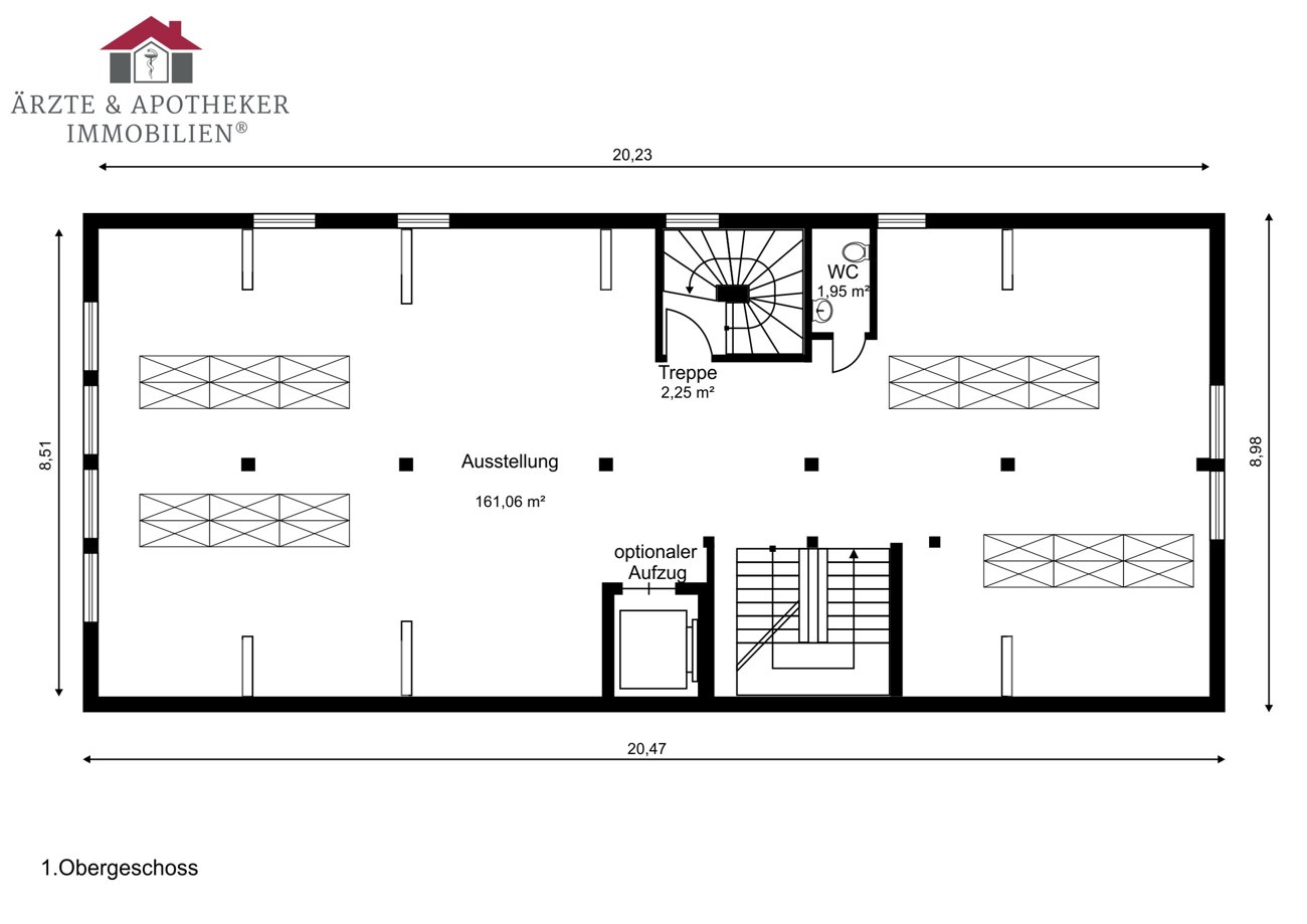
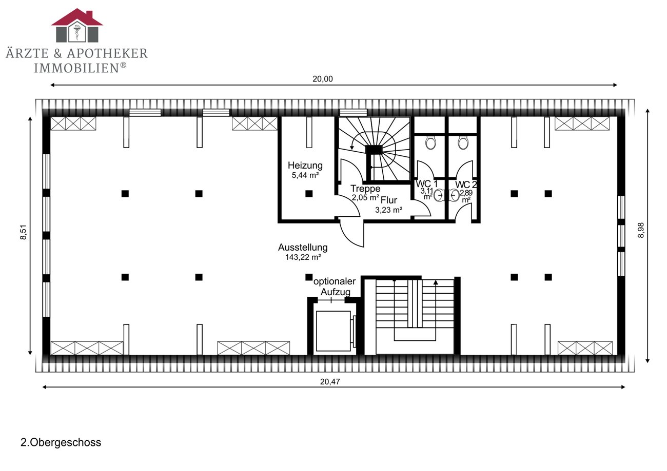
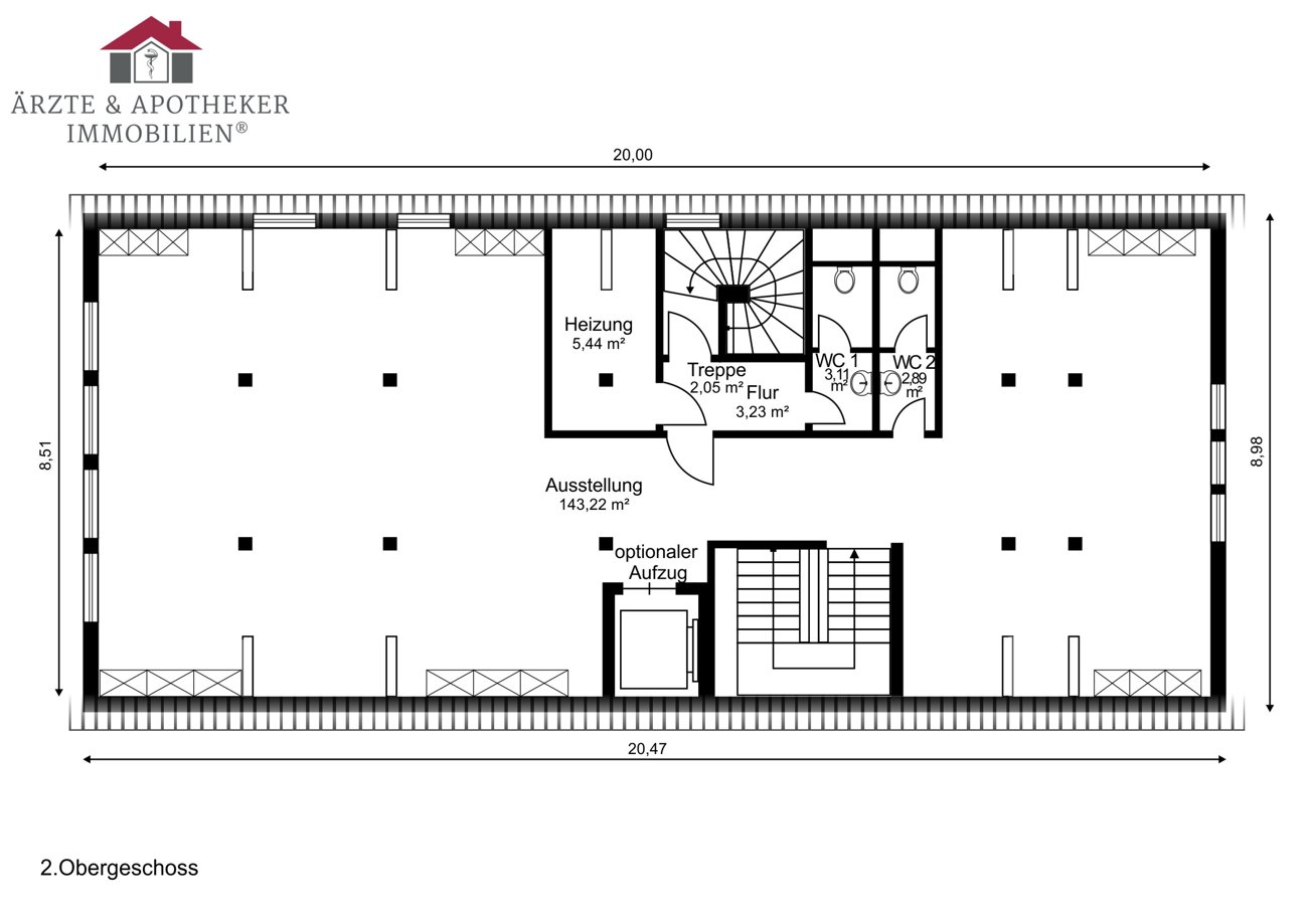
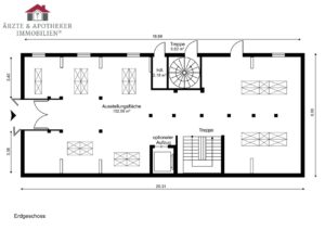
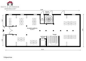
Das Erd- u. Obergeschoss sind mit dem Flair der ursprünglichen offenen Balkenlage ideale Präsentation- und Verkaufsflächen. Sie sind durch eine breite Eichenholztreppe direkt untereinander verbunden. Der Eingang zur Straße ist mit einer Luftschleieranlage versehen. Das Dachgeschoss ist optimal für Verwaltung, Lager und einfache Werkstattarbeiten geeignet. Ein separates Treppenhaus mit Nebeneingang verbindet alle drei Geschosse direkt. Im Ober- und Dachgeschoss befinden sich drei WC´s und eine Pantryküche.
Zwei Parkplätze können miterworben werden.
Die Immobilie wird aus Altersgründen verkauft.
















































